Преимущества блочного основания
К плюсам бетонных блоков 20х20х40 относят:
- Простую технологию кладки. Нет необходимости в опалубке, изделия с таким размером проще выровнять, ошибки практически исключены.
- Меньшую зависимость от погодных условий: сборку фундамента из бетонных блоков желательно провести при плюсовой температуре, но нет необходимости в уплотнении раствора, подогреве при резком похолодании или постоянном увлажнении залитого монолита в жаркую погоду.
- Повышенную прочность и долговечность основания.
- Доступную стоимость блоков для фундамента, низкие затраты на монтаж.
- Высокую точность геометрических форм, что в свою очередь сводит к минимуму расход кладочного раствора и упрощает процесс гидроизоляции и отделки.
- Экологичность и соответствие санитарным нормам.
Следует учесть, что указанные достоинства проявляются лишь при приобретении фундаментных блоков высокого качества. Стеновые или пустотелые изделия подходят лишь для щитовых времянок, специалисты их покупать не советуют.
Рекомендуемые типы фундамента
Из блоков с размером 20х20х40 проще всего сделать основание ленточного или столбчатого типа. Первый вариант выбирается при строительстве фундамента для домов с высокой несущей способностью, и в свою очередь может иметь мелкозаглубленное (для построек из дерева) и заглубленное (для кирпичных и каменных зданий) исполнение.
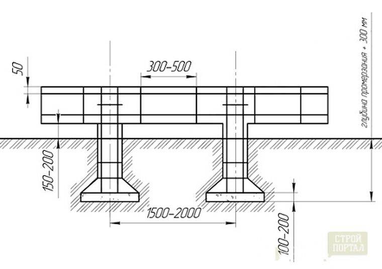
Второй тип (столбчатый) выбирается чаще всего, он оптимален для легких малоэтажных объектов на глубокопромерзающих, но малоподвижных грунтах. Рекомендуемая глубина заложения опор варьируется от 1,5 до 3 м, следует помнить, что подпольное пространство в таких домах отсутствует и цокольная часть требует дополнительной отделки.
Устройство столбчатых фундаментов
Примерная пошаговая инструкция по производству фундаментных работ:
- При разбивке здания на местности по внешней проекции натягиваются разметочные шнуры.
- По всему периметру сооружения следует снять слой растительного грунта толщиной 15-20 см и шириной 50-60 см со смещением на внешнюю сторону здания. Это необходимо для последующего устройства забирки цоколя.
- Места расположения фундаментных столбов отмечаются колышками по центру согласно заранее составленного эскизного плана разбивки.
- Глубина выемки грунта для устройства мелкозаглублённых фундаментов составляет обычно не более 40 см.
- При глубоких фундаментах (например: ниже глубины промерзания) применение блоков нерационально из-за возникающих трудностей в укладке блоков и возрастающем объёме земляных работ для облегчения качественного монтажа.
- Грунт, по возможности, вынимается на площади, минимально превышающей размеры сечения столба. Обычно столбчатый фундамент устраивается квадратным с размером каждой стороны 40 см.
- Нижняя отметка каждой ямы должна быть единой для всех столбов, проверка отметки проводится с помощью нивелира или другими способами.
- Подготовка или подушка под блоки обычно устраивается из песчано-гравийной смеси. Возможно применение только песчаной подсыпки.
- Уплотнение подстилающего слоя производится с помощью ручной трамбовки, изготовленной из бревна. Песчаный слой неплохо уплотняется простой заливкой избыточного количества воды.
- Первый (нижний) ряд из двух блоков укладывается непосредственно на песчано-гравийную подушку либо на выравнивающий слой из цементно-песчаного кладочного раствора.
- Промежуток между блоками заполняется раствором толщиной около 1 см.
- Уложенный ряд блоков накрывается раствором и на него укладывается перпендикулярно перекрывающий следующий ряд.
- Аналогично с перекрытием укладываются все ряды до нужной отметки.
- Цементно-песчаный раствор приготавливается из расчёта на 1 часть цемента М400-500 три части просеянного песка. Вода добавляется в количестве, необходимом для создания пластичной густой консистенции раствора.
- Проверяется верхняя отметка столбов. Она должна быть одинакова для всей системы. При необходимости возможно добавление выравнивающих слоёв из раствора, в отдельных случаях верхний ряд может быть выложен из красного полнотелого кирпича.
- В шов верхнего ряда иногда вставляется анкерный болт для последующего крепления деревянной обвязки
- Последним этапом считается устройство укрывающей верхний ряд гидроизоляции из рубероида на битумной мастике.
Видео: Каркасный дом на блоках своими руками
Пескоцементные
Согласно действующему ГОСТ 6133-99, изделия с габаритами 20, 20, 40 сантиметров могут изготавливаться из разного типа бетонов. Пескоцементные блоки изготавливают из цементно-песчаной смеси способом вибропрессования. Данная технология позволяет получить очень прочные на сжатие и долговечные изделия с идеальными геометрическими параметрами и заявленными характеристиками.
Пескоцементные блоки бывают двух типов: цельными и пустотными (с количеством пустот 2-8). Пустотные изделия демонстрируют не очень высокую прочность, но зато дают хорошие показатели звуко/теплонепроницаемости, предполагают меньший вес.
Блоки из пескобетона с размерами 20х20х40 сантиметров используют в строительстве несущих стен, оснований, опорных колонн, цоколей. Выполняя кладку стены, можно получить толщину в половину блока, а также в один/полтора/два. Благодаря хорошей прочности и высоким теплоизоляционным свойствам пустотный пескоцементный камень используют в кладке внешних стен.

Основные преимущества пескоцементных блоков:
- Противостояние любым агрессивным воздействиям – ветер, солнце, мороз, осадки
- Простота и высокая скорость кладки, дальнейшей отделки (оштукатуривание, окраска)
- Доступная стоимость
- Длительный срок эксплуатации
- Высокая прочность
- Экологичность и безопасность для здоровья, жизни человека
- Прекрасные тепло/звукоизоляционные характеристики
Строительство фундамента из блоков — обзор технологии
Типовое строительство сборного, ленточного фундамента из железобетонных или пескоцементных блоков развивается по следующей схеме:
В первую очередь на стройплощадке отрывают котлован – полноценную выемку грунта прямоугольной формы со скошенными стенками. В итоге, поперечный срез выемки принимает форму трапеции, а габаритам фундамента соответствует только дно котлована.
Во вторую очередь необходимо озаботиться обустройством песчано-гравиевой подушки, улучшающей несущую способность основного грунта и работающей, как элемент дренажной системы. Кроме того, на этом этапе к месту строительства основания подтягивают траншеи инженерных коммуникаций.
После обустройства подсыпки, выравнивающей дно котлована, можно приступать к строительству подошвы фундамента
И тут следует проявить осторожность: ведь, сколько стоит бетонный блок для фундамента, столько «стоит» и сама смета строительства основания. Поэтому, если предполагается сооружение малонагруженного основания в качестве элемента подошвы можно использовать тавровый блок БФ типа, поверх которого укладываются блоки из пескоцемента.
- Следующий шаг – строительство ленты фундамента. Как уже говорилось выше по тексту, технология реализации этого этапа зависит от типа блоков, используемых для строительства подошвы. Причем перед укладкой первого слоя малогабаритных пескоцементных блоков или крупных ФБС элементов на верхнюю грань ленты основания наносят слой скрепляющего раствора (одна часть цемента и 3,5 части песка). Мелкие блоки укладываю вручную, крупные ЖБИ – монтируют краном или лебедкой. Однако, и в том, и в другом случае, монтаж верхнего слоя ведется по правилам классической перевязки (верхний блок ставится на два нижних, закрывая своим телом вертикальный монтажный шов). Торцевые швы мелких блоков заполняют цементом после укладки, вертикальный шов крупных блоков армируют стальными шпильками (инсталлированными в торцы ЖБИ заранее) и заливают бетоном М250 или М300.
- После сооружения ленты, поверх последнего слоя блоков заливают армирующий пояс, выравнивающий плоскость ростверка.
Гидроизоляция и теплоизоляция сборного ленточного основания ведется стандартными методами. И после выполнения этих процедур в котлован засыпают обратный грунт, заполняющий пространство между скатом и стенкой основания. В финале вокруг фундамента строят бетонную отмостку и отделывают цоколь.
Как правильно сделать расчеты?
Приступая к расчету столбчатой опоры из блоков 20х20х40 нужно знать, сколько столбов потребуется и какого размера они будут. Эти параметры зависят от нагрузки, которая планируется в будущем на фундамент.
Факторы, определяющие нагрузку:
- вес сооружения вместе с мебелью, оборудованием и людьми;
- погодные условия (ветер, количество осадков).
После определения с числом столбов требуется их правильно разместить на участке. При этом следует учесть, что:
- столбы обязательно должны располагаться в углах постройки;
- в местах, где стены примыкают друг к другу;
- если стены длинные, то столбы ставятся максимум в двух метрах друг от друга по всему периметру каждой стены (если запланирован монолитный ростверк, то между столбами может быть расстояние 3 м).
Расчет веса будущей постройки производится с учетом данных, приведенных в таблице:

Снеговая нагрузка равна нулю, если угол скатов крыши превышает 60 градусов.
Суммарная площадь оснований столбов считается по формуле: S = 1,3×P/Rо, где:
- Р — масса дома с фундаментом, кг;
- Rо — сопротивление (несущая способность) грунта, кг/см2;
- 1,3 — специальный коэффициент, показывающий запас надежности постройки.
Значение Rо определяется по таблице:

Фундаментные блоки (размеры 20х20х40) – основные технические характеристики
Решив использовать ленточный фундамент из блоков при возведении стен здания или выбрав в качестве основы строения столбчатую конструкцию, следует детально ознакомиться с характеристиками применяемого строительного материала.
Провести работы быстро и качественно позволяет использование блоков для постройки фундамента
Рассмотрим их детально. Начнем с длины, высоты и ширины. Габариты изделий указаны в маркировке и составляют:
- длина – 40 см;
- ширина – 20 см;
- высота – 20 см.
К остальным характеристикам изделий относятся следующие параметры:
- вес блочного элемента. Он составляет 30-40 кг;
- плотность блоков. Она зависит от применяемого материала и равна 1,6-2 т/м3;
- способность проводить тепло. Уровень теплопроводности достигает 1,2 Вт/мК;
- морозостойкость. Блоки выдерживают более 100 циклов замораживания.
Важный параметр блочных изделий – нагрузочная способность. Фундаментные блоки не разрушаются, воспринимая нагрузку на квадратный сантиметр до 0,2 т. Принимая решение использовать блоки ФБС для решения различных задач, следует учитывать их эксплуатационные характеристики.
Нагрузочная способность-важный параметр блочных изделий
Блоки для столбов фундамента: основные требования
Главными критериями самостоятельного возведения дома или другой постройки считается доступность понимания процессов строительства, а также возможность применения простых, нетяжёлых и малогабаритных материалов. Стеновые блоки из монолитного бетона наиболее соответствующий таким пожеланиям материал для устройства фундаментов при соблюдении условий:
- оптимальные размеры: 400 мм длина, по 200 мм ширина и высота;
- геометрическая форма — правильный параллелепипед с точным соблюдением углов и размеров;
- монолитный бетонный блок должен весить в пределах 35 кг\шт.;
- структура бетона может быть шероховатой, но ровной, без сколов, наростов, трещин и выбоин;
- пустоты в блоках для фундамента недопустимы;
- бетон должен набрать прочность не менее 70% от проектной, то есть пролежать от изготовления до использования не менее 28 суток для набора естественной прочности;
- простая проверка качества и прочности: при лёгком ударе по блоку молотком он отскакивает, а при падении с высоты 1м на грунт блок не получает повреждений.
Информация про пескоцементные блоки
Данные бетонные блоки из пескоцемента (как их еще называют пескоцементные или пескобетонные блоки) применяются в различных областях деятельности. Однако многие наши клиенты о них знают не так много и поэтому мы вам расскажем ниже основное о пескоцементных блоках.
Образцы в офисе. Пескоцементные блоки в ассортименте
Свойства и характеристики пескоцементных блоков
Наполнителем для этих песчано цементных блоков служит, как видно из названия кварцевый песок и портландцемент. Производят полусухим вибропресованием. Эти блоки используются и для внешних, и для внутренних стен. Они очень надежны, практичны и экономичны.
В основном выпускаются самого распространенного размера — блок 400х200х200 мм.
Пескоцементные блоки (бетонные) бывают:
• Пустотелые ( бывают 2, 4, 7, 8, 11 щелевые), которые обеспечивают хорошую тепло- и звукоизоляцию
• Полнотелые – прочные, применяются для строительства фундаментов.
• Стеновые – для несущих стен.
• Лицевые – для облицовки фасада.
• Перегородочные – предназначены для внутренних перегородок.
• Фундаментные
Образцы в офисе. Блоки пескобетонные щелевые
Многие застройщики выбирают именно эти популярные бетонные блоки 20х20х40, потому что его можно купить практически везде, найти его совсем несложно, но нужно грамотно подходить в выбору поставщика, потому что если гнаться за низкой ценой, не всегда можно потом на своем объекте при выгрузке увидеть качественный продукт. Также этот материал стоит недорого, а в процессе строительства данным блокам не надо уделять много внимания. Они достаточно просты в применении, а строительство осуществляется очень быстро.
Необходимо купить пескоцементные блоки и блок 20х20х40?
У нас вы найдете любые пескоцементные блоки и популярный блок 20х20х40, цена которых конкурентна способна и ниже рыночных. Они имеют высокое качество, долгий срок службы. Данные блоки обладают целым спектром преимуществ, которые выгодно их выделяют на фоне других материалов для строительства. Использование пескоцементных блоков при строительстве – это верное и грамотное решение. Стоит отметить, что эти бетонные блоки стойки к морозам и являются огнеустойчивыми
Это очень важно, потому что при различных экстремальных погодных условиях они будут сохранять свой прежний вид и ни в коем случае не деформируются. Эти цементные блоки — экологически чистый материал, поэтому здания строить из него безопасно
Людям данные блоки вреда не принесут. Вещества, входящие в их состав, были проверены и протестированы специалистами. Они точно не навредят организму человека.
Упаковываются бетонные блоки 20х20х40 на поддонах (паллетах) и обматываются или стрейч пленкой или лентой-стяжкой.
Используются пескобетонные блоки для строительства и малоэтажных домов, и многоэтажных. Это могут быть не только дома, но еще и офисные здания, и магазины и даже гараж для собственной машины. Их применение в этой области достаточно разнообразно. Для пескоцементных блоков не имеют значения погодные условия, а значит в любую погоду, даже очень неприятную они будут сохранять свое высокое качество.
Особенности и цена фундаментных блоков 20х20х40

- Характеристики
- Фундаментные блоки своими руками
- Материалы:
- Изготовление бетона
- Стоимость фундаментных блоков
Их следует использовать там, где нет возможности применять тяжелую строительную технику, например, при постройке дома. Бетонные фундаментные блоки 20×20×40 мм очень легкие, их вес 32 кг.
Еще один неоспоримый плюс этого строительного материала — он пригоден для установки на любой почве и в любой климатической зоне, главное, чтобы грунт не был пучинистым.
Фундаментные блоки 20×20×40 изготавливают промышленным способом из раствора, состоящего из цемента и песка, с небольшим количеством гравия либо щебня. Они имеют форму прямоугольника.
Преимущества стандартного размера 20х20х40 мм
Строительные бетонные блоки с каждым днем становятся все более популярными среди мастеров, так как обеспечивают максимум преимуществ: просты в работе, позволяют создавать прочные конструкции, гарантируют стабильность характеристик, долговечность.
Блоки стандартного размера 20х20х40 сантиметров наиболее востребованы благодаря оптимальным габаритам. С одной стороны, процесс строительства идет быстрее за счет ровности и правильности геометрических размеров, возможности выполнять работы самостоятельно (вес блоков не очень большой и пригонять подъемную технику не нужно). Благодаря качеству изделий достигается экономия на кладочном растворе, отделочных материалах.
Проекты создания фундамента и стен из блоков можно легко просчитать, определив точно расход строительного материала.
Основные преимущества блоков размером 20х20х40 сантиметров:
- Точность габаритов, ровная кладка
- Отсутствие необходимости в привлечении спецтехники
- Не нужно монтировать опалубку
- Простая и быстрая кладка фундамента – экономия времени и сил на строительстве
- Возможность реализовывать работы в любую пору года, не боясь деформаций блоков и распространения трещин
Фундаментные блоки размером 20х20х40 сантиметров – самый оптимальный и выгодный вариант для создания прочных и долговечных оснований, цокольных/подвальных этажей и других конструкций. При условии соблюдения технологии кладки они обеспечивают надежность и наилучшие характеристики конструкции, здания.
Важно помнить

Столбчатый фундамент из блоков 20х20х40 см не предусматривает наличия подвала
Если для будущего владельца этот критерий важен, то следует обратить внимание на другие виды оснований. В качестве наиболее подходящей глубины заложения фундамента выступает 1 м, если же условия строительства требуют более внушительной глубины, то есть смысл рассмотреть возможность строительства фундамента из асбестоцементных труб, заполненных бетоном
Ведь закладка блоков ФБС на глубину больше 1 м является очень трудоемким процессом. Более внушительная глубина может быть продиктована некоторыми условиями строительства по типу массы дома или типа грунта.
Бетонные блоки

Подобные изделия относятся к самым капризным, их очень сложно хранить и транспортировать. Применяют их при сооружении вертикальных оградительных конструкция. Благодаря такому подходу удается удешевить и ускорить все строительные работы.
Согласно ГОСТ 6133-84 бетонные блоки 20х20х40 мм обладают следующими характеристиками:
- Вес продукта может достигать 30-35 кг.
- Тип – полнотелые и пустотелые. Для первого варианта характерно использование только для возведения основания для дома или цокольного этажа. Пустотные материалы пользуются спросом при строительстве стен, перемычек и перегородок.
- Марка готового изделия может достигать М25 – легкие, а также доходить до М500 – тяжелые.
При изготовлении бетонных блоков применяют такие компоненты:
- доброкачественный портландцемент,
- крупнозернистый песок,
- каменную крошку.
В редких случаях в составе могут присутствовать различные добавки, придающие пластичность и стойкость к атмосферным явлениям. Стоимость указанной продукции может достигать 25-45 рублей за штуку. А о том, какой размер железобетонной плиты вы можете почитать в статье.
Каков вес газобетонного блока 1 м-3, указано в данной статье.
На видео – строительные блоки 20х20х40:
Цементные
Это строительный материал на сегодняшний день пользуется особой востребованностью. Причина в том, что цементные блоки 20х20х40 мм очень прост в монтаже, благодаря чему выполнять все работы может даже неопытный человек. Применяют бетонные блоки при строительстве частных домов или многоэтажных конструкций. Благодаря широкому ассортименту указанный продукт удается выбрать самый удачный вариант для конкретных целей.

К основным преимуществам цементных блоков можно отнести:
- прочность и устойчивость;
- долговечность;
- огнестойкость;
- энергосбережение;
- оптимальный уровень температуры, влаги;
- звукоизоляция.
Газобетонные блоки характеристика и особенности применения указаны в статье.
Сколько стоит шлакоблок за штуку? Стоимость представленного изделия может составлять 33 – 45 рублей за штуку.
Виды бетонных блоков
Бетонные блоки по назначению делятся на две группы:
- стеновые;
- подушечные.
Стеновые блоки имеют форму правильного параллелепипеда – их поперечное сечение образует прямоугольник. Их иногда используют для устройства опорных столбов под легкие постройки, но вообще-то они предназначены для формирования цоколя здания.
Для укладки нижнего ряда фундамента или столбиков используют подушечные блоки – их поперечное сечение имеет трапецеидальную форму. За счет уширения изделия в его нижней части увеличивается опорная площадь, а, следовательно, и несущая способность.
Однако применение фундаментных блоков для столбчатого фундамента не совсем удобно – вес одного изделия в зависимости от марки начинается от 350 кг. Да и габариты их внушительные – от 88х30х58 см до 238х60х58 см. Без подъемных машин сборку опоры произвести невозможно.
Для строительства легких малогабаритных зданий промышленностью выпускаются специальные блоки под столбчатый фундамент из керамзитобетона и других облегченных материалов. Их габаритные размеры удобны для ручной укладки. Они составляют 20х20х40 см.

Но не все виды облегченных блоков можно использовать: например, блоки арболитовые на столбчатый фундамент не годятся — их максимальная несущая способность составляет всего 50 кг/кв.см.
Керамзитобетон впитывает влагу лучше бетона, поэтому особое внимание при строительстве опорно – столбчатого фундамента из блоков данного вида уделяется гидроизоляции столбов
Как сделать столбчатый фундамент из разных материалов

Для каркасного дома данный вариант самый дешевый и распространенный. Опорные столбы размещают в местах сильного воздействия нагрузок. На них возводится нижняя обвязка каркасного дома, которая выполняется из бруса. Высота надземной части столбов должна быть не менее 50 сантиметров.
При использовании кирпича для устройства столбов, должно выбираться только качественное жженое изделие. Из него можно выполнить как заглубленный вариант фундамента, так и малозаглубленный. Основные столбы обычно изготавливают в 2,5 кирпича. Остальные разрешено выполнять в 1,5.
При использовании блоков с хорошими качественными показателями столбы не уступают кирпичным вариантам. Предпочтение стоит отдать бетонным блокам, так как они лучше выдерживают большие нагрузки.
Вариант с ростверком представляет собой жесткую конструкцию, которая состоит из отдельных столбов, связанных сверху между собой поясом. Ростверк усиливает опоры, придает ему большую надежность. Также он распределяет более равномерно нагрузки между отдельными элементами.

При возведении небольших строений, таких как беседки, теплицы, сарая, гаража и бани, самым популярным вариантом фундамента является именно столбчатый, так как он не только позволяет выполнить все работы очень быстро, но и является самым бюджетным.
Фундамент столбчатого типа под колонны выполняется, если необходимо передать нагрузку от отдельных колонн на грунт. Чаще всего это стаканный вариант.
Столбы из асбестовых труб используется не часто. Такой вариант можно применять на сложном рельефе, а также при необходимости быстроты выполнения всех строительных работ. Внутри труб выполняется армирующий каркас, который заливается бетонным раствором.
В роли опалубки могут быть использованы пластиковые трубы, которые не боятся влаги. В данном случае нет необходимости выполнять дополнительную гидроизоляцию.
Шлакоблоки для возведения столбчатого основания используются крайне редко, только под очень легкие постройки, так как они не выдерживают сильных нагрузок.
При строительстве домов из бруса самым экономичным вариантом будет служить столбчатая система. Материалами выполнения отдельных столбов, в данном случае, могут служить кирпич, железобетон, монолит, а также асбестовые трубы.
Фундамент из канализационных труб диаметром 110 миллиметров имеет очень долгий срок службы, а также обладают достаточной прочностью и жесткостью.
При правильном выполнении всех этапов строительства можно получить тот фундамент, который увеличит срок эксплуатации всего строения.
Видео о том, как заливать столбчатый фундамент:
Используем фундаментные блоки 20х20х40 при сооружении фундаментной основы
Собираясь возвести ленточный или столбчатый фундамент из ФБС блоков, следует выполнить ряд мероприятий:
- Провести геодезические изыскания на объекте строительства.
- Рассчитать нагрузочную способность фундаментной основы.
- Разработать проектную документацию.
- Определить количество фундаментных блоков.
- Приобрести блоки и другие стройматериалы.
- Доставить все необходимое на строительную площадку.
Выбор конкретной разновидности фундамента зависит от конструктивных особенностей строения и свойств грунта.

От конструктивных особенностей строения и свойств грунта зависит выбор конкретной разновидности фундамента





































